At Echo Custom Homes, we specialize in creating exceptional custom homes that exceed your wildest expectations. Every detail is meticulously crafted to reflect your unique style and personality.

Design & Build

Our team is dedicated to turning your vision into reality. With a focus on innovative design and precision construction, we have created homes from 1,800 – 6,800 sq feet and would love a opportunity to bring your custom ideas to life! Below you will find a few of the many design in our design/build portfolio. 

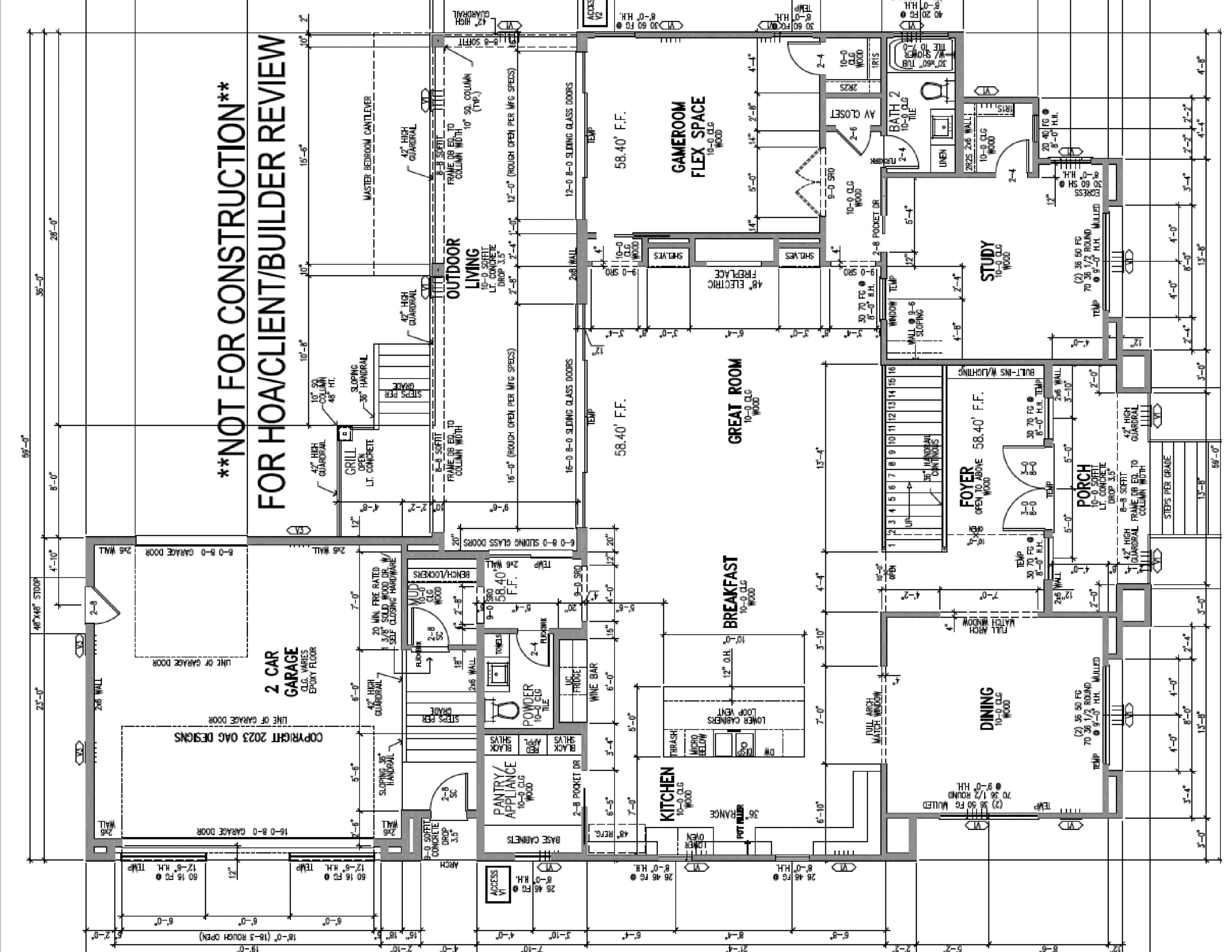
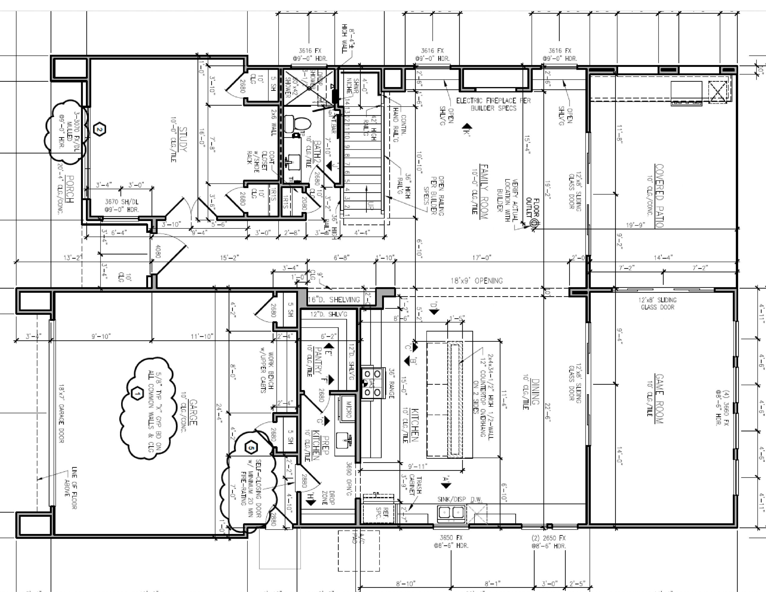
Floor Plans

Below you will find a few example floor plans by Echo Custom Homes

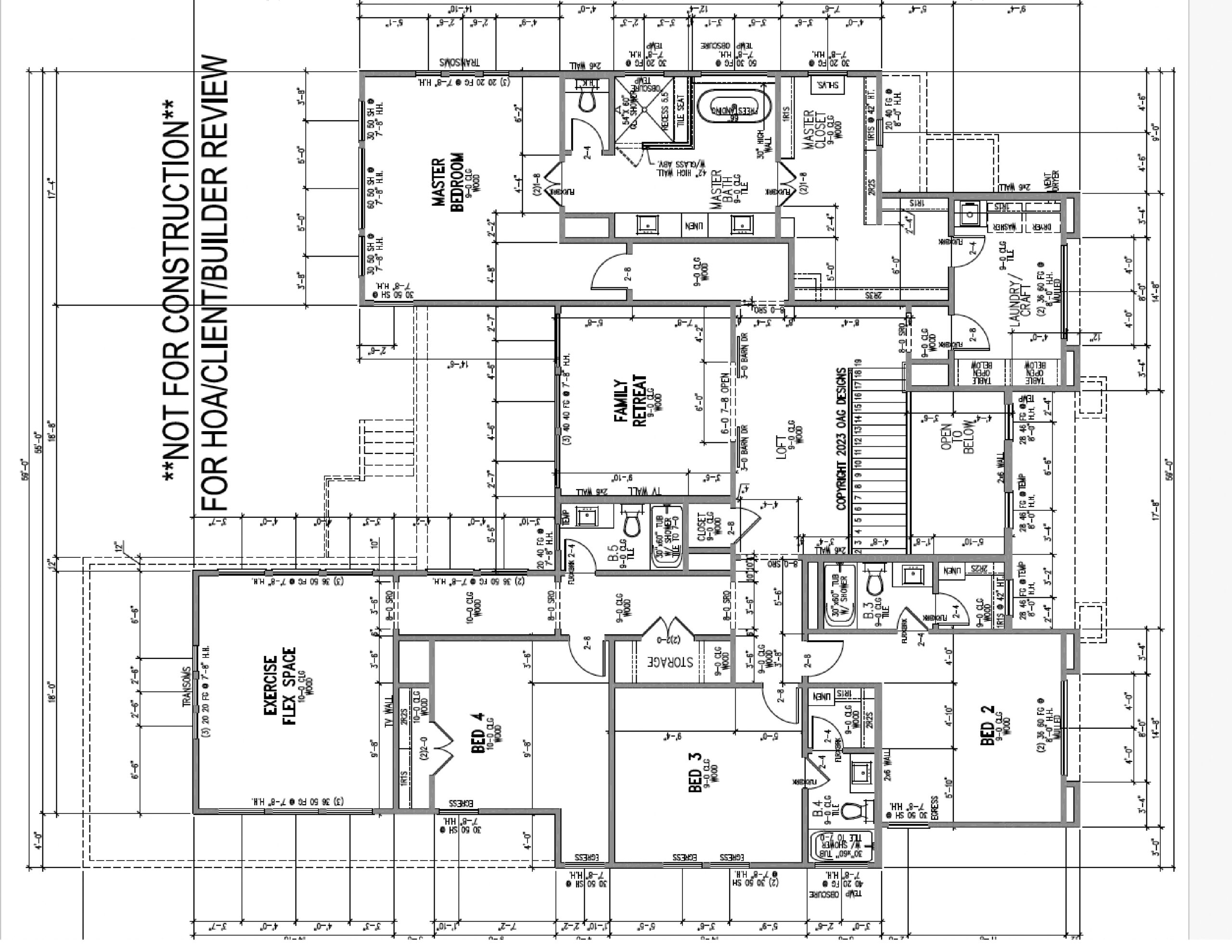
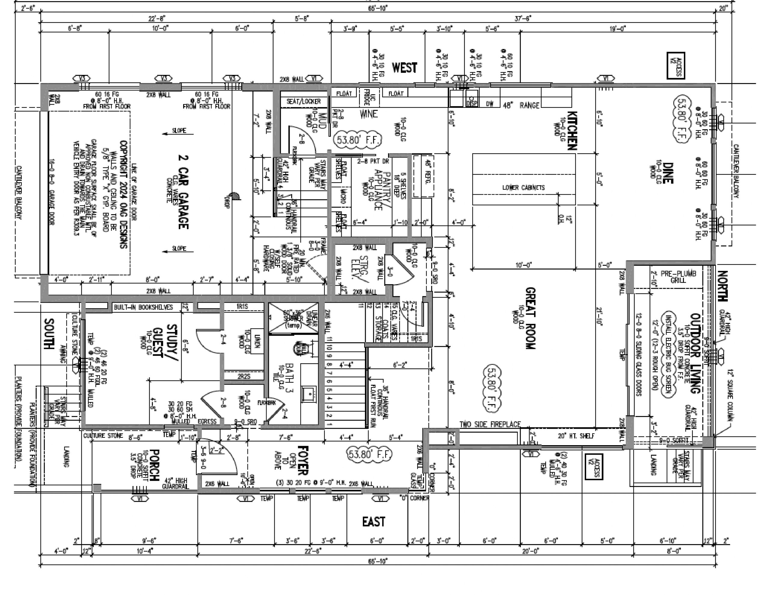
The Modern Lodge

Mid Century Modern Home

  • 5 Bedrooms
  • 6.5 Bathrooms
  • 5,387 SQFT

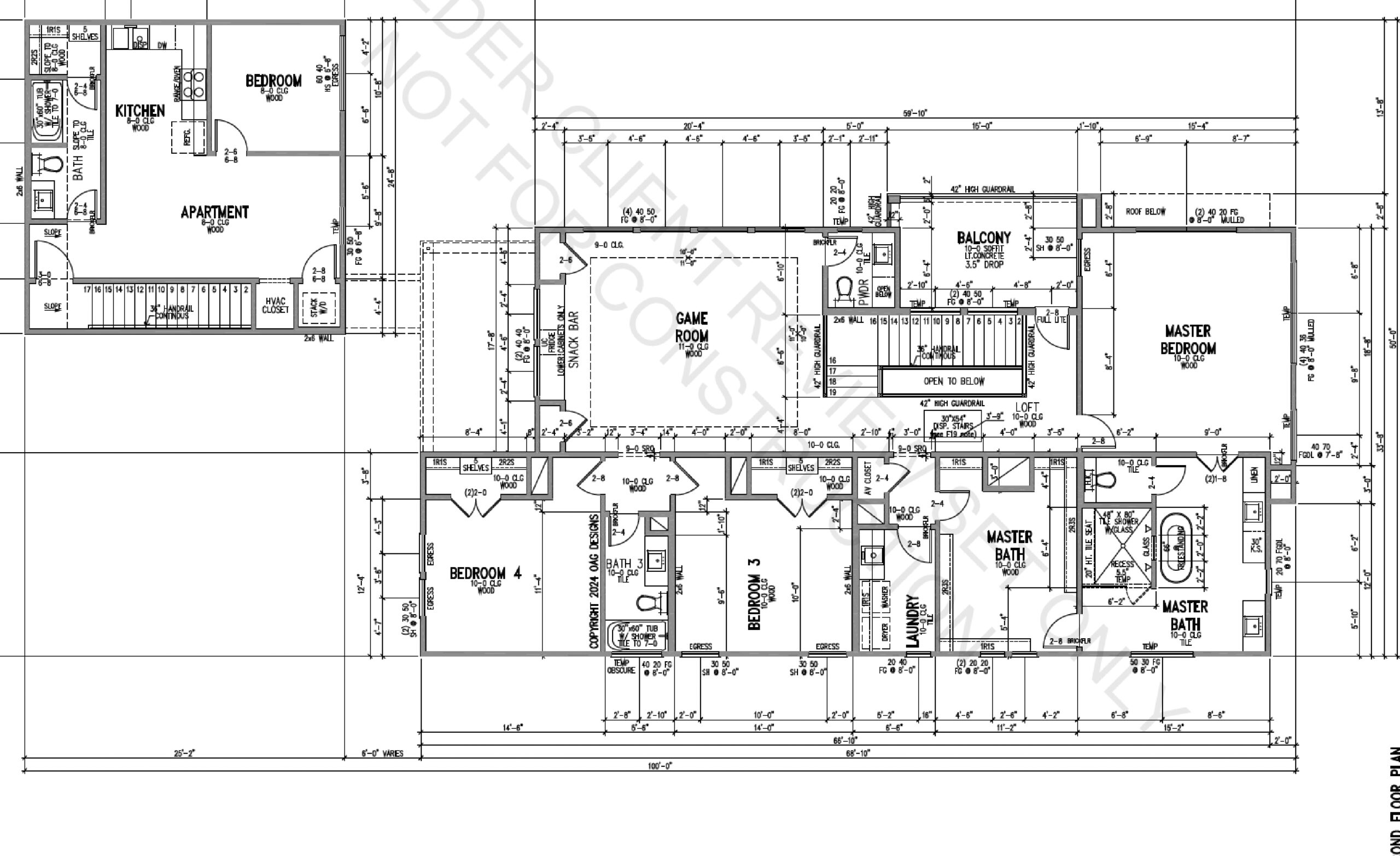
The Modern Mid Century

Mid Century Modern Home

  • 4 Bedrooms
  • 3.5 Bathrooms
  • 4,360 SQFT

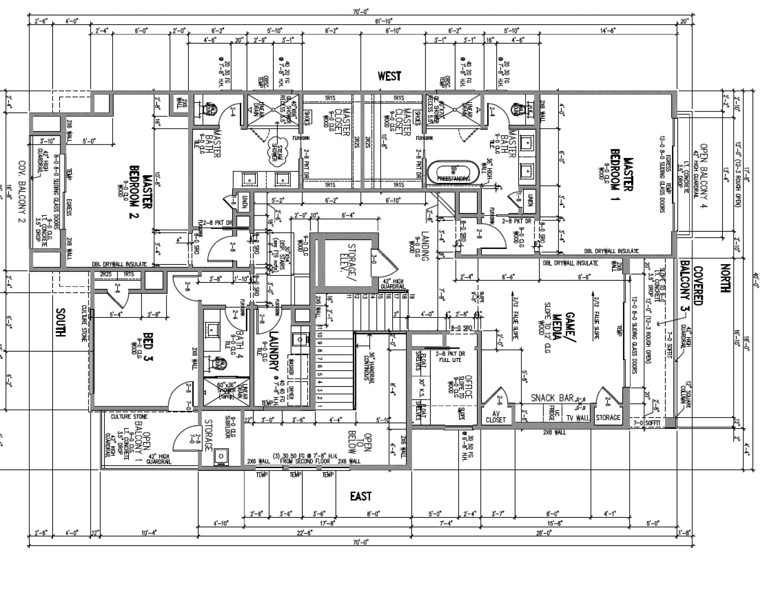
The Modern Memorial

Modern Contemporary Home

  • 7 Bedrooms
  • 6.5 Bathrooms
  • 6,021 SQFT

The Modern Meyerland

Modern Transitional Home

  • 4-5 Bedrooms
  • 5.5 Bathrooms
  • 4,820 SQFT

The Modern Thornton

Modern Transitional Home

  • 4 Bedrooms
  • 4 Bathrooms
  • 5,000 SQFT

The Modern Galleria

Modern Transitional Home

  • 4-5 Bedrooms
  • 4.5 Bathrooms
  • 4,520 SQFT

The Modern Oak

Modern Contemporary Home

  • 3-4 Bedrooms
  • 3.5 Bathrooms
  • 3,194 SQFT

The Modern Park

Modern Contemporary Home

  • 4 Bedrooms
  • 4 Bathrooms
  • 4,320 SQFT

The Modern Tangley

Modern Contemporary Home

  • 5 Bedrooms
  • 5.5 Bathrooms
  • 4,644 SQFT

The Modern Reese

Modern Contemporary Home

  • 4 Bedrooms
  • 4 Bathrooms
  • 5,000 SQFT

The Modern Bellaire

Modern Transitional Home

  • 3-4 Bedrooms
  • 4 Bathrooms
  • 3,631 SQFT

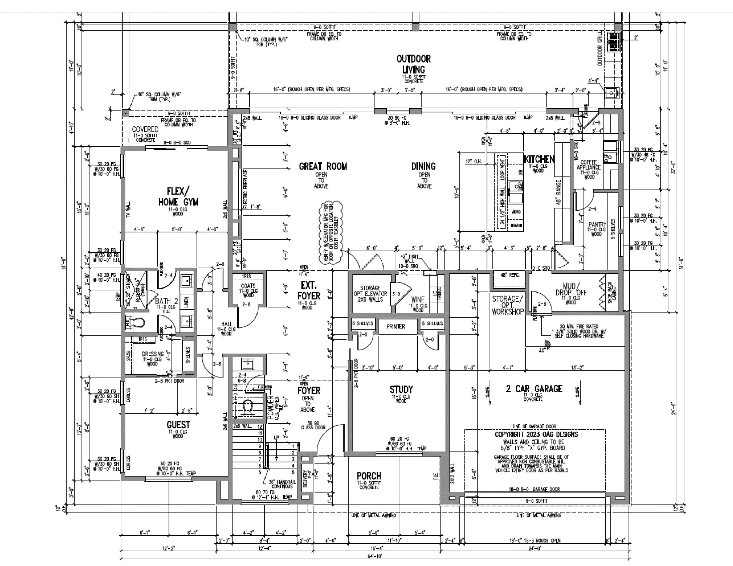
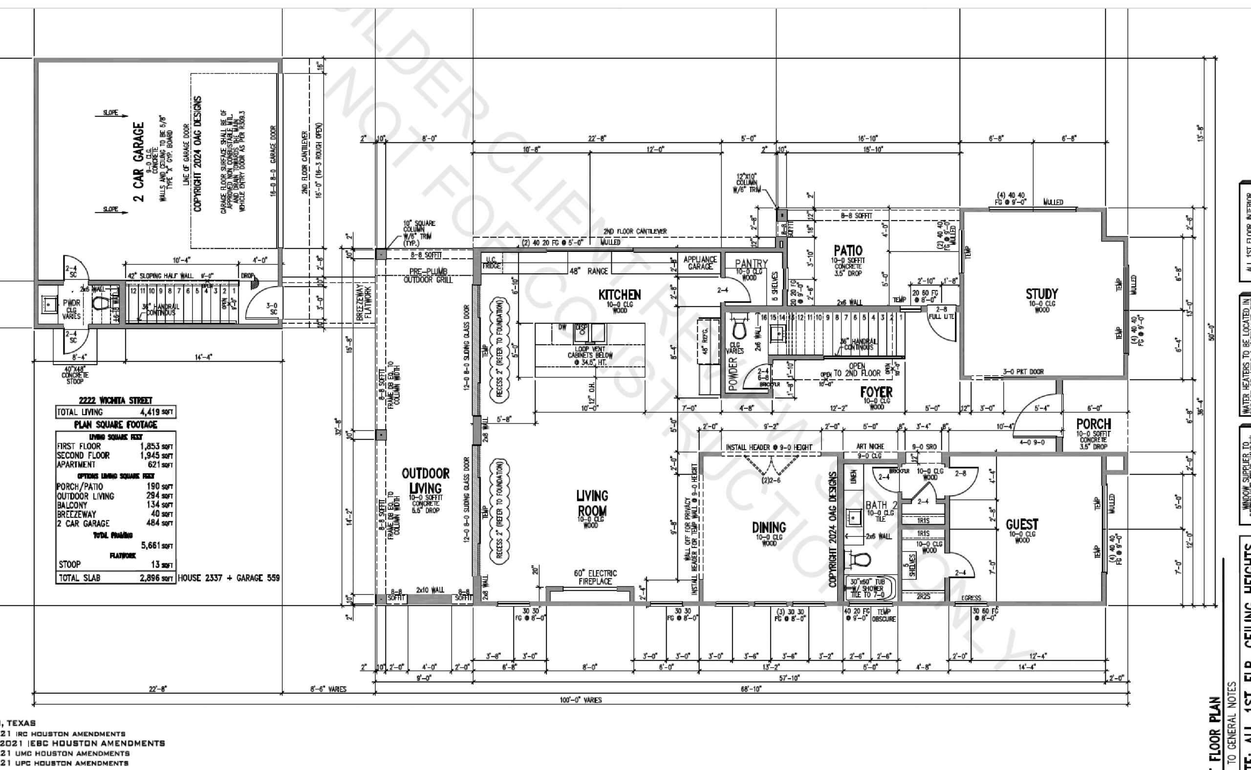
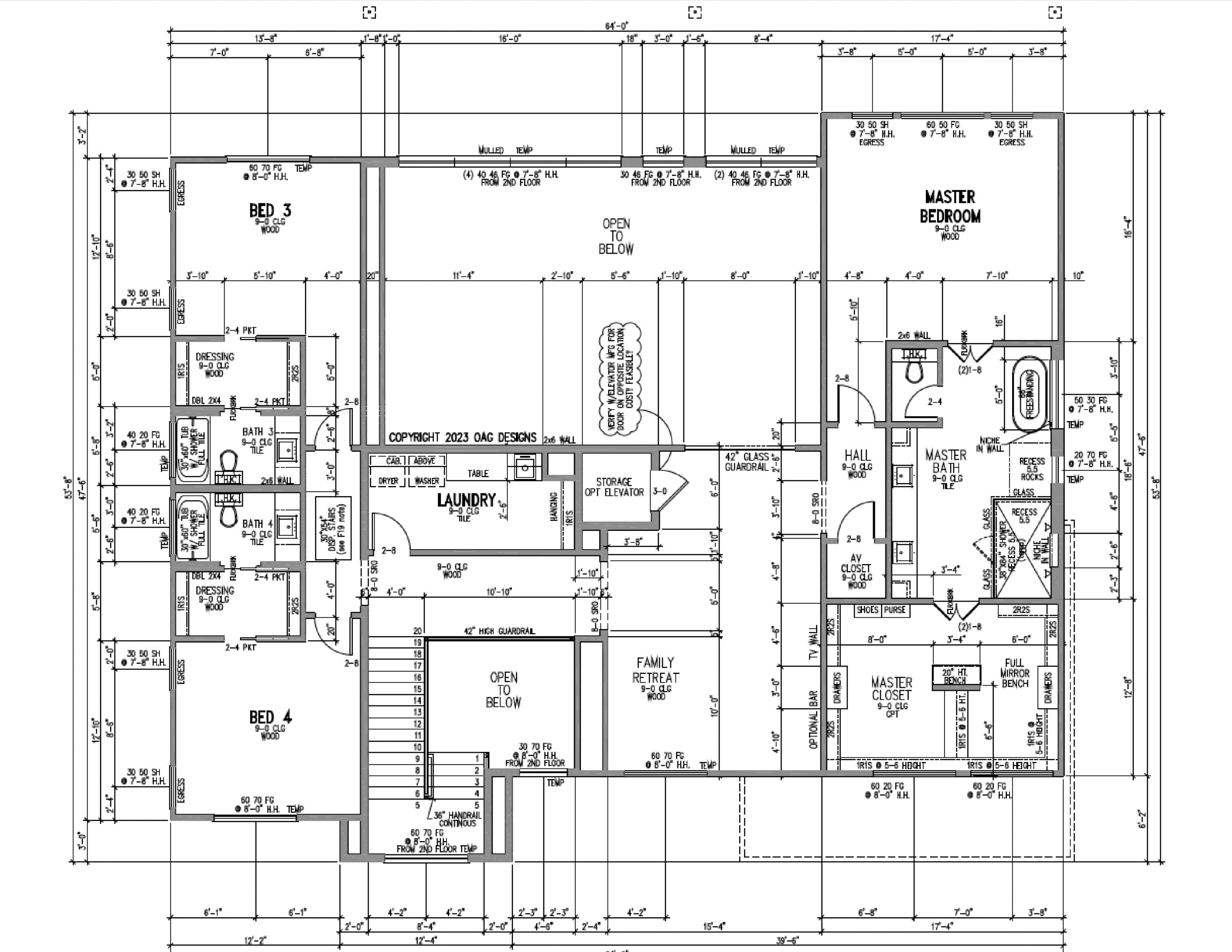
The Modern Logan

Modern Transitional Home

  • 5 Bedrooms
  • 4.5 Bathrooms
  • 4,419 SQFT

Available Homes for purchase

2102 Tangley St Houston TX 77005

Mid Century Modern

  • 5 Bedroom
  • 5.5 Bath

 

Coming Soon!

1225 Althea Dr. Houston TX 77018 $1,899,900.00

Mid Century Modern

  • 4-5 Bedroom
  • 5 Bath
    Welcome to your modern dream home! This stunning home boasts an open floor plan, perfect for entertaining friends and family. Downstairs, you’ll find a spacious game room, ideal for having fun and making memories. Step outside to the large patio, where you can relax and enjoy the beautiful backyard.The oversized primary closet is a dream come true, offering plenty of storage space for all your belongings. Upstairs, the family room provides a cozy retreat for cozy movie nights or quiet evenings at home. With modern finishes throughout, including multiple sliders that let in plenty of natural light, this home is truly a showstopper. Built by an award-winning builder, you can trust that the quality and craftsmanship are top-notch. Don’t miss your chance to own this incredible property – schedule a showing today and make this house your home sweet home!

1226 Du Barry Ln. Houston TX 77018 $1,890,000.00

Mid Century Modern

  • 5 Bedroom
  • 4.5 Bath
    Welcome to your dream home! This stunning modern property features an open floor plan, perfect for entertaining friends and family. The spacious game room downstairs and up are ideal for fun and making memories, while the large patio offers a serene escape in the beautiful backyard. You’ll love the 2 primary closets, providing ample storage for all your belongings. Upstairs, the cozy entertainment room is perfect for movie nights or the kids retreat. With modern finishes throughout the multiple sliders and large windows will flood the space with natural light, this home is truly a showstopper. Built by an award-winning builder Echo Custom Homes, you can trust the top-notch quality and craftsmanship. Don’t miss out on this incredible opportunity—schedule a showing today and make this house your home sweet home!